滾筒篩是一種經典、通用的篩分設備,篩網可以根據實際情況選擇,篩網可最多可以布置四種,可同時篩分出5個規格的產品。廣泛用于礦山、焦炭、煤炭、電力、建材、冶金、化工等行業。
工作原理
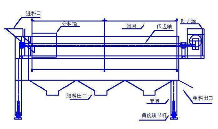
滾筒篩主要有電機、減速機、滾筒裝置、機架、密封蓋、進出料口組成。滾 筒裝置傾斜安裝于機架上。電動機經減速機與滾筒裝置通過聯軸器連接在一起,驅 動滾筒裝置的傾斜與轉動,使篩面上的物料翻轉與滾動,使合格物料(篩下產品) 經滾筒外圓的篩網排出,不合格的物料(篩上產品)經滾筒末端排出。由于物料在 滾筒內的翻轉、滾動,使卡在篩孔中的物料可被彈出,防止篩孔堵塞。


產品特點
1、滾筒篩篩孔不易堵塞;
2、運行平穩,噪聲較低;
3、結構簡單地,維護方便;
4、滾筒篩整機可靠性高,一次性投資較少;
5、采用特制篩網,篩分效率高,使用壽命長
設備細節

設備參數
案例工程








滬公網安備 31011202006420號
客服1